Here Comes Everybody
“…riverrun, past Eves and Adams…”
This funerary homage to James Joyce began as an exercise in translating his final and most oblique novel – Finnegans Wake – into an architectural narrative, by incorporating certain recurring motifs, such as rivers, funerals, and wakes, as well as structural influences, such as the cyclical view of history illustrated in Giambattista Vico’s La Scienza Nuova. However, it soon became a metaphor for my struggle to understand the book, with every word becoming a more ethereal concept reflecting a multitude of alternate concepts and meanings.
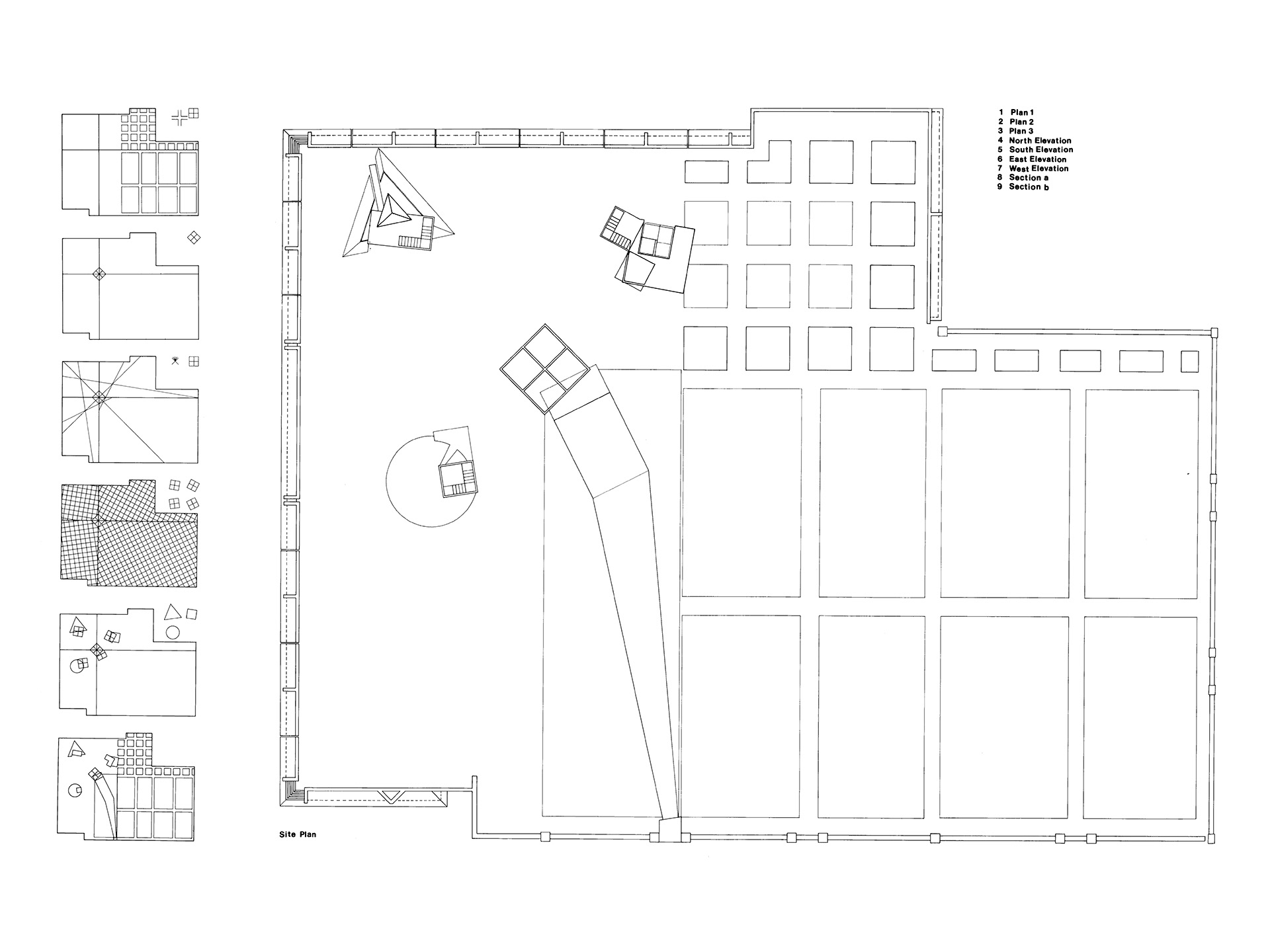
At its most basic, this project is a scheme for a future cemetery, which, due to overpopulation begins to expand as a egg-shaped volume emerging from the ground. This volume is a lattice of reflective columns and beams, forming a modular network for crypts, tombs, and caskets. The living journey through this framework through a circulating “river”, which has multiple cyclical routes and from which branches of circulation will take them to their desired memorial location.













































